Aller à :

  • Aller à la recherche
  • Aller au menu principal
  • Aller au contenu
0
  • Accueil
  • ACHETER
    • Appartements
    • Villas
    • Autres produits
    • Nos biens vendus
    • Immo pro
  • Vendre
  • LOUER
    • Appartements
    • Villas
    • Locations Professionnelles
  • Immobilier professionnel
  • GÉRER
  • L'AGENCE
    • Notre équipe
  • Contact
0
VotreRecherche
Dans un rayon de
Budget
entre et €
Min €
Max €
Surface
entre et m²
Min m²
Max m²
Pièces
entre et Pièces
Min Pièces
Max Pièces
Critères supplémentaires
  1. Agence immobilière à Marseille 13013
  2. Vente
  3. Bouches du rhone
  4. Gemenos
  5. Maison
  6. T4
  7. Gemenos secteur coulin 13420 terrain 3900m maison 113m
Réf : 1759gemenos
Maison
Gémenos Secteur Coulin 13420 Terrain 3900m² maison 113m²
Nombre de pièces 4
Nombre de chambres 3
Nombre de salles de bain 1
Salle d'eau 1
TRAD_MELTEM_Superficieterrainenm² 3907 m²
747 000 €

Gémenos Secteur Coulin 13420 Terrain 3900m² maison 113m² Gémenos (13420)

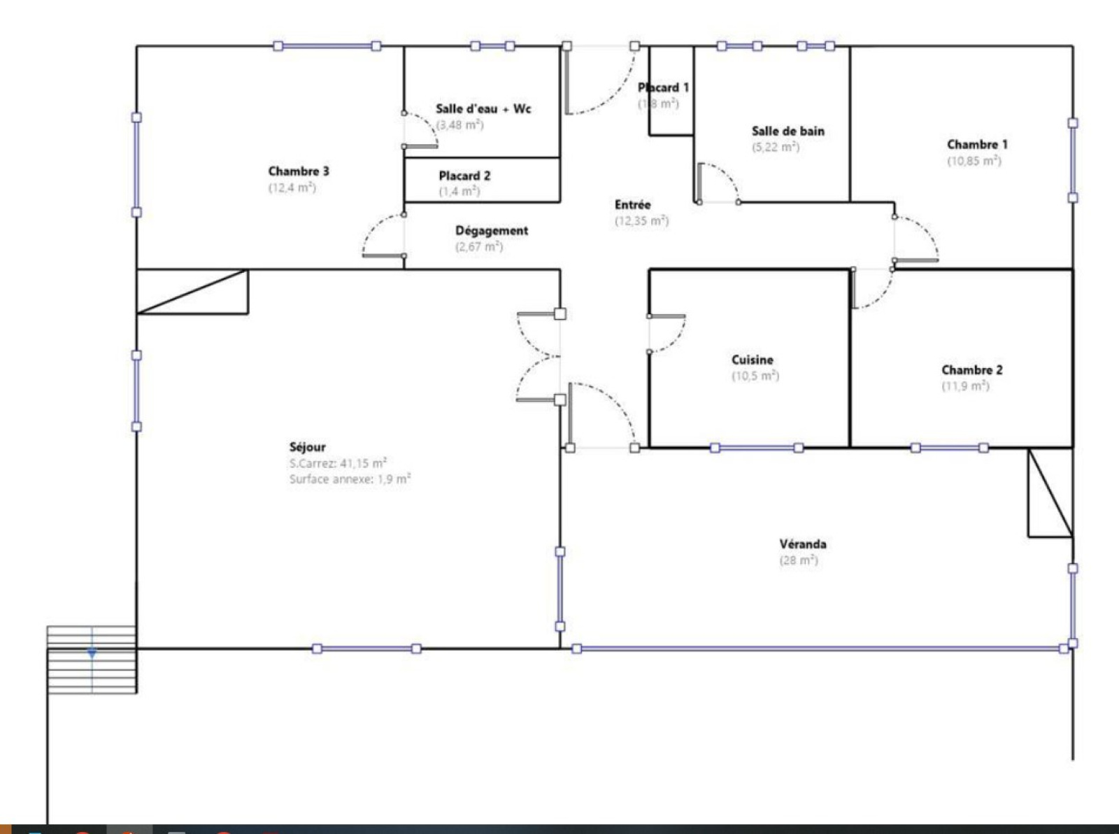
*** Exclusivité MSG Immo 13 *** Gémenos secteur COULIN -- Villa individuelle construite en 1985 de 113m² de type 4 + véranda 28m² + terrasse 64m² sur une parcelle très arborée de 3900m² exposée SUD. Entièrement de plain pied (plan en photo), composée d'un hall, séjour de 42m², cuisine spacieuse, 3 chambres, deux sdb avec wc. Pas de vis à vis et jardin plat. Double vitrage bois, cheminée et climatisation dans le séjour. Fosse septique. Travaux de rafraîchissement mais un potentiel superbe ! TF 1263€.

  • Général
  • Détails +
  • Copropriété
  • Financier
  • DPE
  • Quartier
Caractérisque Valeurs
Code postal 13420
Surface habitable (m²) 113 m²
surface terrain 3 907 m²
Nombre de chambre(s) 3
Nombre de pièces 4
Nombre de niveaux 1
Caractérisque Valeurs
Nb de salle de bains 1
Nb de salle d'eau 1
Cuisine Séparée
Mode de chauffage Electrique, Bois, Climatisation
Type de chauffage Radiateur, Cheminée, Air pulsé
Format de chauffage Individuel, Individuel, Individuel
Terrasse OUI
Exposition Sud
Année de construction 1985
Terrain piscinable OUI
Terrain arboré OUI
Caractérisque Valeurs
Copropriété NON
Caractérisque Valeurs
Prix de vente 747 000 €
Les honoraires d'agence seront intégralement à la charge du vendeur  
Taxe foncière annuelle 1 263 €
DPE GES
  • Commerces et santé
  • Loisirs
  • Ecoles
  • Transports
  • Pratique
Cette offre
vous intéresse

* champs obligatoires

Les informations recueillies sur ce formulaire sont enregistrées dans un fichier informatisé par La Boite Immo agissant comme Sous-traitant du traitement pour la gestion de la clientèle/prospects de l'Agence / du Réseau qui reste Responsable du Traitement de vos Données personnelles.
La base légale du traitement repose sur l’intérêt légitime de l'Agence / du Réseau.
Elles sont conservées jusqu'à demande de suppression et sont destinées à l'Agence / au Réseau.
Conformément à la loi « informatique et libertés », vous pouvez exercer votre droit d'accès aux données vous concernant et les faire rectifier en contactant l'Agence / le Réseau.
Si vous estimez, après avoir contacté l'Agence / le Réseau, que vos droits « Informatique et Libertés » ne sont pas respectés, vous pouvez adresser une réclamation à la CNIL.
Nous vous informons de l’existence de la liste d'opposition au démarchage téléphonique « Bloctel », sur laquelle vous pouvez vous inscrire ici : https://www.bloctel.gouv.fr 
Dans le cadre de la protection des Données personnelles, nous vous invitons à ne pas inscrire de Données sensibles dans le champ de saisie libre
Ce site est protégé par reCAPTCHA, les Politiques de Confidentialité et les Conditions d'Utilisation de Google s'appliquent.

Partager le bien
Nos outils
Imprimer Imprimer
Calculatrice financière

* Champ obligatoire

Partager l'annonce

* champs obligatoires

Les informations recueillies sur ce formulaire sont enregistrées dans un fichier informatisé par La Boite Immo agissant comme Sous-traitant du traitement pour la gestion de la clientèle/prospects de l'Agence / du Réseau qui reste Responsable du Traitement de vos Données personnelles.
La base légale du traitement repose sur l’intérêt légitime de l'Agence / du Réseau.
Elles sont conservées jusqu'à demande de suppression et sont destinées à l'Agence / au Réseau.
Conformément à la loi « informatique et libertés », vous pouvez exercer votre droit d'accès aux données vous concernant et les faire rectifier en contactant l'Agence / le Réseau.
Si vous estimez, après avoir contacté l'Agence / le Réseau, que vos droits « Informatique et Libertés » ne sont pas respectés, vous pouvez adresser une réclamation à la CNIL.
Nous vous informons de l’existence de la liste d'opposition au démarchage téléphonique « Bloctel », sur laquelle vous pouvez vous inscrire ici : https://www.bloctel.gouv.fr 
Dans le cadre de la protection des Données personnelles, nous vous invitons à ne pas inscrire de Données sensibles dans le champ de saisie libre
Ce site est protégé par reCAPTCHA, les Politiques de Confidentialité et les Conditions d'Utilisation de Google s'appliquent.

Détail des diagnostics énergétiques
DPE GES

Montant estimé des dépenses annuelles d'énergie pour un usage standard est compris entre 1 640 € et 2 270 € . Prix moyens des énergies indexés sur les années 2021, 2022 et 2023 (abonnements compris).

Partager avec vos proches

Facebook Facebook
Messenger Messenger
Twitter Twitter
WhatsApp WhatsApp
LinkedIn LinkedIn
Copier le lien Copier le lien
Autres biens

Ces biens peuvent aussi vous intéresser

Maison

St Mitre - Château Gombert Villa T5 de 123m² sur parcelle de 600m²...

Marseille (13013)
Voir le bien
Maison

Villa rénovée T4 114m² sur 1756m² de terrain Saint Mitre prche...

Marseille (13013)
Voir le bien
Se connecter
Espace propriétaire
Page d'accueil
AVIS CLIENTS
Adhérents

© 2025 | Tous droits réservés | Traduction powered by Google |

  • Nos honoraires
  • Plan du site
  • Mentions légales
  • Admin
  • Nos partenaires
  • Politique RGPD

Comme beaucoup, notre site utilise les cookies

On aimerait vous accompagner pendant votre visite. En poursuivant, vous acceptez l'utilisation des cookies par ce site, afin de vous proposer des contenus adaptés et réaliser des statistiques !

Paramétrer

Statistiques de visites

Pour améliorer votre expérience, on a besoin de savoir ce qui vous intéresse !
Les données récoltées sont anonymisées.

?

Google Analytics

requis
?

Google Tag Mananger

requis
Cookies optionnels

Ces cookies sont déposés par des prestataires afin d'identifier des produits ou services que vous consultez.

Avis client

?

Opinion System

En savoir plus