Aller à :

  • Aller à la recherche
  • Aller au menu principal
  • Aller au contenu
0
  • Accueil
  • ACHETER
    • Appartements
    • Villas
    • Autres produits
    • Nos biens vendus
    • Immo pro
  • Vendre
  • LOUER
    • Appartements
    • Villas
    • Locations Professionnelles
  • Immobilier professionnel
  • GÉRER
  • L'AGENCE
    • Notre équipe
  • Contact
0
VotreRecherche
Dans un rayon de
Budget
entre et €
Min €
Max €
Surface
entre et m²
Min m²
Max m²
Pièces
entre et Pièces
Min Pièces
Max Pièces
Critères supplémentaires
  1. Agence immobilière à Marseille 13013
  2. Location
  3. Bouches du rhone
  4. Marseille
  5. Marseille 13eme arrondissement
  6. Appartement
  7. T3
  8. T2 3 53 74m parc galilee 13013 rdj avec box double en sous sol
Réf : Galilé
Appartement
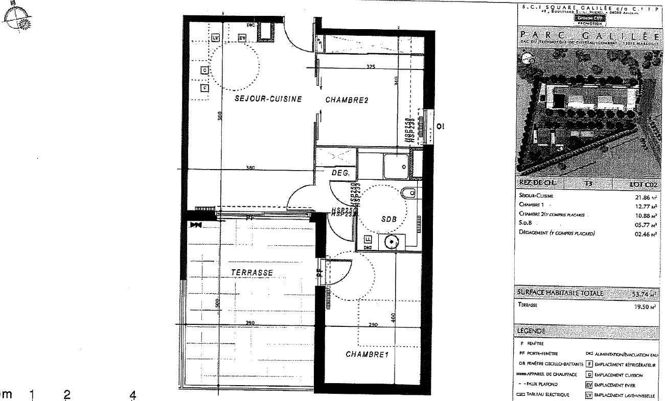
T2/3 53.74M² PARC GALILEE 13013 RDJ AVEC BOX DOUBLE EN SOUS-SOL
Nombre de pièces 3
Nombre de chambres 2
Salle d'eau 1
866 € CC*

* Charges comprises

T2/3 53.74M² PARC GALILEE 13013 RDJ AVEC BOX DOUBLE EN SOUS-SOL Marseille (13013)

Dispo immédiatement : dans une résidence récente fermée et sécurisée Parc Galilée (41 rue Augustin Fresnel 13013) T2/3 en rez-de-jardin de 53.74m² avec box double en sous-sol et terrasse de 19m². Se compose d'une pièce à vivre avec cuisine us, chambre pouvant faire office de séjour, dégagement avec placard, salle d'eau avec wc et chambre avec dressing. Loyer : 786 + 80 = 866 €. Dépôt de garantie 786 €. Frais d'agence 695 €

  • Général
  • Détails +
  • Copropriété
  • Financier
  • DPE
  • Quartier
Caractérisque Valeurs
Code postal 13013
Surface habitable (m²) 53,74 m²
Surface loi Boutin (m²) 53,74 m²
Nombre de chambre(s) 2
Nombre de pièces 3
Meublé NON
Caractérisque Valeurs
Nb de salle d'eau 1
Cuisine Américaine
Type de cuisine SEMI-EQUIPEE
Mode de chauffage Electrique
Type de chauffage Panneaux rayonnant
Format de chauffage Individuel
Terrasse OUI
Nombre de garage 1
Exposition Sud
Année de construction 2014
Caractérisque Valeurs
Copropriété NON
Caractérisque Valeurs
Loyer CC* / mois 866 €
Honoraires TTC charge locataire 695 €
Dont état des lieux Non renseigné
Dépôt de garantie TTC 786 €
Charges locatives (Previsionnelles mensuelles les avec regularisation annuelle) 80 €
DPE GES
  • Commerces et santé
  • Loisirs
  • Ecoles
  • Transports
  • Pratique
Cette offre
vous intéresse

* champs obligatoires

Les informations recueillies sur ce formulaire sont enregistrées dans un fichier informatisé par La Boite Immo agissant comme Sous-traitant du traitement pour la gestion de la clientèle/prospects de l'Agence / du Réseau qui reste Responsable du Traitement de vos Données personnelles. La base légale du traitement repose sur l'intérêt légitime de l'Agence / du Réseau. Elles sont conservées jusqu'à demande de suppression et sont destinées à l'Agence / au Réseau. Conformément à la loi « informatique et libertés », vous disposez des droits d’accès, de rectification, d’effacement, d’opposition, de limitation et de portabilité de vos données. Vous pouvez retirer votre consentement à tout moment en contactant directement l’Agence / Le Réseau. Consultez le site https://cnil.fr/fr pour plus d’informations sur vos droits. Si vous estimez, après avoir contacté l'Agence / le Réseau, que vos droits « Informatique et Libertés » ne sont pas respectés, vous pouvez adresser une réclamation à la CNIL. Nous vous informons de l’existence de la liste d'opposition au démarchage téléphonique « Bloctel », sur laquelle vous pouvez vous inscrire ici : https://www.bloctel.gouv.fr Dans le cadre de la protection des Données personnelles, nous vous invitons à ne pas inscrire de Données sensibles dans le champ de saisie libre.
Ce site est protégé par reCAPTCHA, les Politiques de Confidentialité et les Conditions d'Utilisation de Google s'appliquent.

Partager le bien
Nos outils
Imprimer Imprimer
Calculatrice financière

* Champ obligatoire

Partager l'annonce

* champs obligatoires

Les informations recueillies sur ce formulaire sont enregistrées dans un fichier informatisé par La Boite Immo agissant comme Sous-traitant du traitement pour la gestion de la clientèle/prospects de l'Agence / du Réseau qui reste Responsable du Traitement de vos Données personnelles. La base légale du traitement repose sur l'intérêt légitime de l'Agence / du Réseau. Elles sont conservées jusqu'à demande de suppression et sont destinées à l'Agence / au Réseau. Conformément à la loi « informatique et libertés », vous disposez des droits d’accès, de rectification, d’effacement, d’opposition, de limitation et de portabilité de vos données. Vous pouvez retirer votre consentement à tout moment en contactant directement l’Agence / Le Réseau. Consultez le site https://cnil.fr/fr pour plus d’informations sur vos droits. Si vous estimez, après avoir contacté l'Agence / le Réseau, que vos droits « Informatique et Libertés » ne sont pas respectés, vous pouvez adresser une réclamation à la CNIL. Nous vous informons de l’existence de la liste d'opposition au démarchage téléphonique « Bloctel », sur laquelle vous pouvez vous inscrire ici : https://www.bloctel.gouv.fr Dans le cadre de la protection des Données personnelles, nous vous invitons à ne pas inscrire de Données sensibles dans le champ de saisie libre.
Ce site est protégé par reCAPTCHA, les Politiques de Confidentialité et les Conditions d'Utilisation de Google s'appliquent.

Détail des diagnostics énergétiques
DPE GES

Montant estimé des dépenses annuelles d'énergie de ce logement pour un usage standard est compris entre 480 € et 690 € . 2021 étant l'année de référence des prix de l'énergie utilisés pour établir cette estimation.

Partager avec vos proches

Facebook Facebook
Messenger Messenger
Twitter Twitter
WhatsApp WhatsApp
LinkedIn LinkedIn
Copier le lien Copier le lien
Se connecter
Espace propriétaire
Page d'accueil
AVIS CLIENTS
Adhérents

© 2026 | Tous droits réservés | Traduction powered by Google |

  • Nos honoraires
  • Plan du site
  • Mentions légales
  • Admin
  • Nos partenaires
  • Politique RGPD

Comme beaucoup, notre site utilise les cookies

On aimerait vous accompagner pendant votre visite. En poursuivant, vous acceptez l'utilisation des cookies par ce site, afin de vous proposer des contenus adaptés et réaliser des statistiques !

Paramétrer

Statistiques de visites

Pour améliorer votre expérience, on a besoin de savoir ce qui vous intéresse !
Les données récoltées sont anonymisées.

?

Google Analytics

requis
?

Google Tag Mananger

requis
Cookies optionnels

Ces cookies sont déposés par des prestataires afin d'identifier des produits ou services que vous consultez.

Avis client

?

Opinion System

En savoir plus